Used 2015 Forest River RV Forester LE 2251SLE Chevy Motor Home Class C
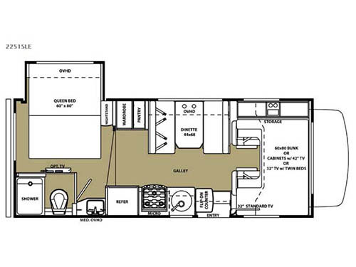
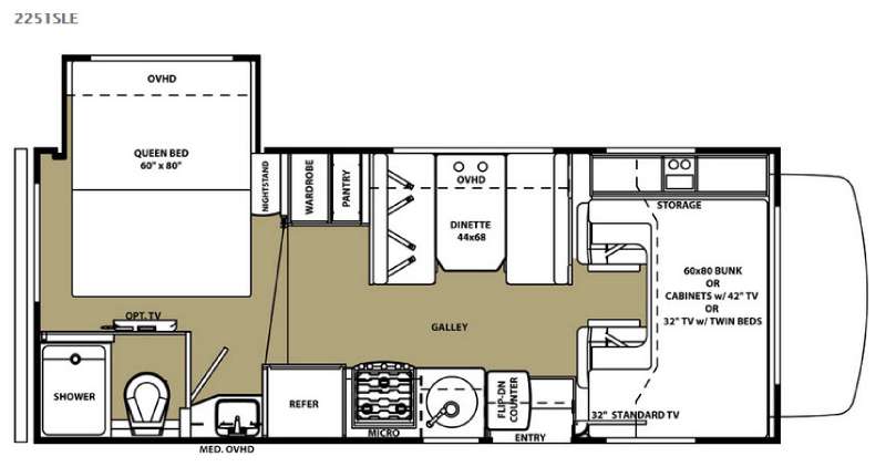
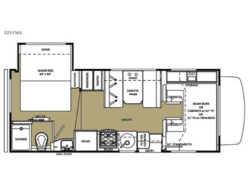
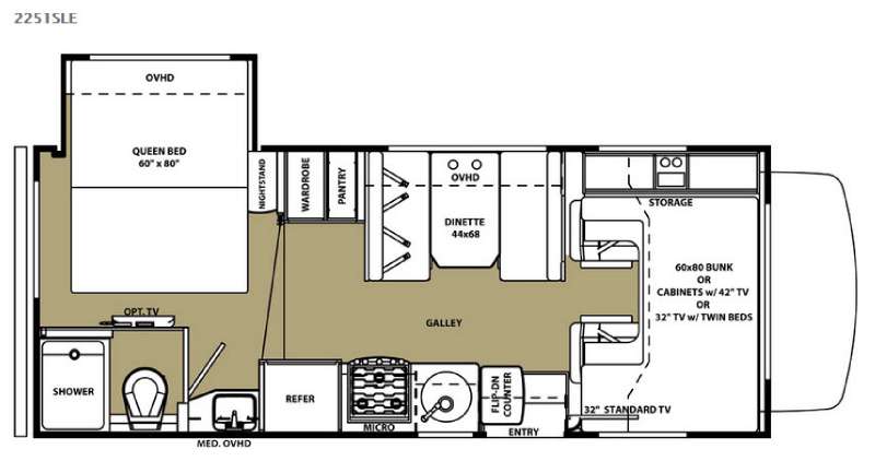
The Forester LE 2251SLE Chevy motor home by Forest River features a single slide.
As you enter the motor home, to the left there is a flip-up counter, sink, three burner range, microwave and refrigerator. The opposite side of the motor home has a dinette, pantry and wardrobe.
In the bedroom you will find a queen bed slide and nightstand. Across from the bed there is an optional TV along the wall.
The bathroom has a shower and toilet. Just outside of the bathroom area there is a sink and medicine cabinet.
Above the cab you will find a 60" x 80" bunk, or you can choose optional cabinets with 42" TV or 32" TV with twin beds.
Absolutely amazing and so kind! We have a hybrid travel trailer and we were getting tossed around traveling from the Denver area to Miles City Mt. During the trip we had a mishap with an hidden and illplaced clearance bar that resulted in roof damage and antenna damage. We called them from Douglas, Wy to see if they could at least install an anti-sway system. They were ready for us the minute we pulled - Lindsay
Stock# R4574
Chassis: Chevy
| Sleeps | 5 |
| Slides | 1 |
| Length | 24 ft 4 in |
| Ext Width | 8 ft 5 in |
| Ext Height | 11 ft 3 in |
| Int Height | 7 ft |
| Hitch Weight | 5000 lbs |
| GVWR | 14200 lbs |
| Dry Weight | 9640 lbs |
| Cargo Capacity | 4560 lbs |
| Fresh Water Capacity | 39 gals |
| Grey Water Capacity | 32 gals |
| Black Water Capacity | 27 gals |
| Furnace BTU | 30000 btu |
| Miles | 23742 |
| Chassis | Chevy |
| VIN | 1GB6G5CG9E1174439 |
Loading
www.usedrvsforsale.com is not responsible for any misprints, typos, or errors found in our website pages. Any price listed excludes sales tax, registration tags, and delivery fees. Manufacturer-provided pictures, specifications and features may be used as needed. Inventory shown may be only a partial listing of the entire inventory. Please contact us at 780-451-6656 for availability as our inventory changes rapidly. All calculated payments are an estimate only and do not constitute a commitment that financing or a specific interest rate or term is available.
Manufacturer and/or stock photographs may be used and may not be representative of the particular unit being viewed. Where an image has a stock image indicator, please confirm specific unit details with your dealer representative.


