Used 2017 KZ Venom 4020DQ Toy Hauler Fifth Wheel
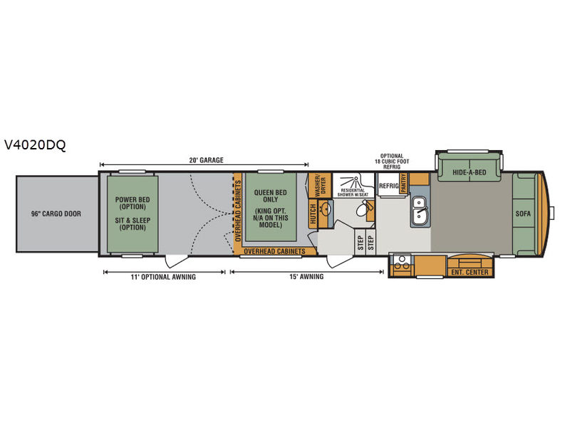
Step inside the 96" rear cargo door for easy loading and unloading. You can add a power bed lift and Sit and Sleep option below for added seating and sleeping space for extra family or friends. There is also a side man door along the curb side for easy access to the garage area once the cargo door is closed. A lift away wall can be dropped into place to create a private second bedroom up front in the cargo area. Here you will find a queen bed, and hutch for storage, plus a washer and dryer. Now that's convenient! You can even choose a ramp door patio option with entry steps and an electric awning if you like.
Head through the door and find yourself in the main fifth wheel living space. There is a complete bath to your immediate left that offers a residential shower with seat, toilet, and vanity with sink.
Head up two steps to the kitchen and front living room where you will find added space thanks to dual slide outs. The curb side slide features a three burner range, counter space, and an entertainment center. There is a larger sofa across the front of the unit, and a hide-a-bed sofa in the road side slide. Along the road side you will also find a refrigerator, pantry, and counter peninsula which features a double sink, plus so much more!
On the outside you can enjoy a bit of protection from the elements with a 15' awning featured off the main side entry door. You can opt. for a second 11' awning that would cover the garage side door area as well.
After over 20 plus years we found Schieks RV, in Manitowoc and we are so glad we did, Tina was knowledgable and genuine you can tell she truly wants what is best for you and cares just like she would if buying a camper/fifth wheel for herself.
We met the service team when first looking at the fifth wheel and again at walk through making sure everything was set for us, explaining everything and - Allan
You Save: $53,087
Sale Price: $24,900
Stock# 5KZ1099B
| Sleeps | 10 |
| Slides | 2 |
| Ext Width | 8 ft 5 in |
| Ext Height | 13 ft 4 in |
| Int Height | 8 ft 6 in |
| Hitch Weight | 2750 lbs |
| GVWR | 19000 lbs |
| Dry Weight | 13620 lbs |
| Cargo Capacity | 5380 lbs |
| Fresh Water Capacity | 100 gals |
| Grey Water Capacity | 114 gals |
| Black Water Capacity | 40 gals |
| Tire Size | 16" |
| Furnace BTU | 35000 btu |
| Number Of Bunks | 1 |
| Available Beds | Queen |
| Refrigerator Size | 8 cu ft |
| Cooktop Burners | 3 |
| Number of Awnings | 2 |
| Axle Weight | 10870 lbs |
| Garage Size | 20 ft |
| LP Tank Capacity | 30 |
| Water Heater Capacity | 12 gal |
| Water Heater Type | Gas/Electric DSI |
| AC BTU | 15000 btu |
| TV Info | LR HD LED, BR Flat Panel, Garage HD Flat Panel |
| Awning Info | 15' Electric & 11' Electric option |
| Axle Count | 2 |
| Washer/Dryer Available | Yes |
| Number of LP Tanks | 2 |
| Shower Type | Shower w/Seat |
| Electrical Service | 50 amp |
| VIN | 4EZFH4036H6099404 |
Loading
www.usedrvsforsale.com is not responsible for any misprints, typos, or errors found in our website pages. Any price listed excludes sales tax, registration tags, and delivery fees. Manufacturer-provided pictures, specifications and features may be used as needed. Inventory shown may be only a partial listing of the entire inventory. Please contact us at 800-515-9672 for availability as our inventory changes rapidly. All calculated payments are an estimate only and do not constitute a commitment that financing or a specific interest rate or term is available.
Manufacturer and/or stock photographs may be used and may not be representative of the particular unit being viewed. Where an image has a stock image indicator, please confirm specific unit details with your dealer representative.


