Used 2018 Coachmen RV Freedom Express 276RKDS Travel Trailer
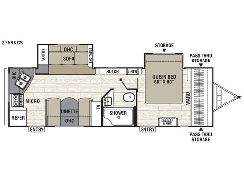
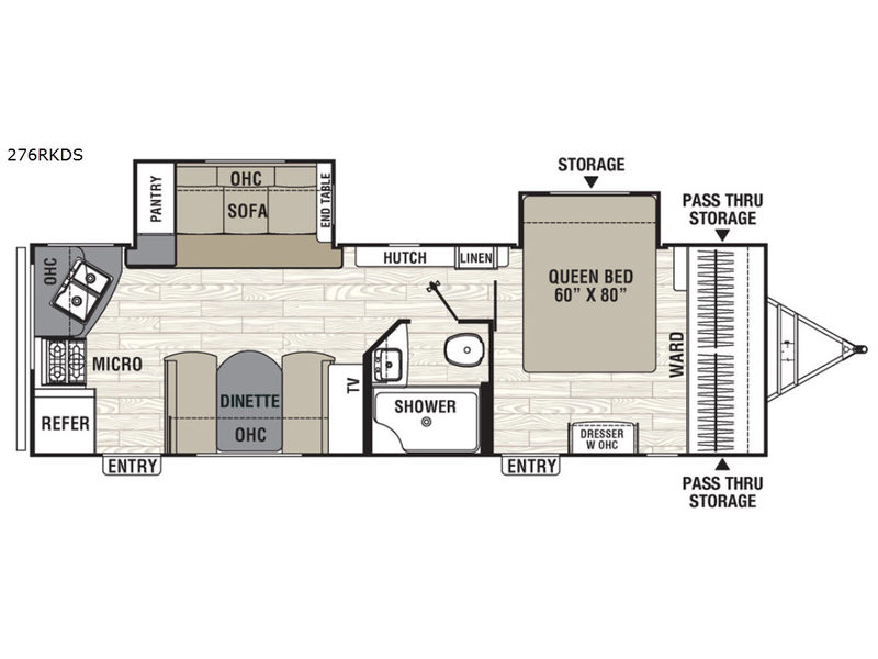
As you enter the rear most door you will see a handy refrigerator to your left. Next to the refrigerator and across the rear of the unit you will find a three burner range, and double sink. There are overhead cabinets for storage as well.
Straight in the door find a slide out sofa with end table including storage above, plus a pantry. More seating is available on the opposite side at the booth dinette that also features overhead cabinets, and a TV along the outer bathroom wall.
There is a hutch base along the roadside just beyond the sofa slide out next to a linen storage cabinet. Opposite, a convenient bathroom featuring a shower with seat, toilet, and a vanity with sink, plus an overhead cabinet.
A sliding hallway door leads into the front private master bedroom which features its own exterior entry/exit door. Inside find a queen bed slide out, a dresser, and a full front wardrobe with exterior pass-through storage beneath, and so much more!
Awesome experience. Shawn was great and super helpful, very knowledgeable and made things very easy and quick. - Christopher
Stock# 2048
Interior Color: Russet, Chestnut, Cashmere
| Sleeps | 6 |
| Slides | 2 |
| Length | 31 ft 6 in |
| Ext Width | 8 ft |
| Ext Height | 10 ft 9 in |
| Interior Color | Russet, Chestnut, Cashmere |
| Hitch Weight | 730 lbs |
| GVWR | 7600 lbs |
| Dry Weight | 6188 lbs |
| Cargo Capacity | 1509 lbs |
| Fresh Water Capacity | 49 gals |
| Grey Water Capacity | 66 gals |
| Black Water Capacity | 33 gals |
| Available Beds | Queen |
| Refrigerator Type | 2 Door |
| Refrigerator Size | 6 cu ft |
| Cooktop Burners | 3 |
| Number of Awnings | 1 |
| LP Tank Capacity | 20 |
| Water Heater Capacity | 6 gal |
| Water Heater Type | Electric/Gas |
| TV Info | LR TV |
| Awning Info | 20' Power |
| Number of LP Tanks | 2 |
| Shower Type | Shower w/Seat |
| VIN | 5ZT2FETB7JS029923 |
Loading
www.usedrvsforsale.com is not responsible for any misprints, typos, or errors found in our website pages. Any price listed excludes sales tax, registration tags, and delivery fees. Manufacturer-provided pictures, specifications and features may be used as needed. Inventory shown may be only a partial listing of the entire inventory. Please contact us at 321-888-7777 for availability as our inventory changes rapidly. All calculated payments are an estimate only and do not constitute a commitment that financing or a specific interest rate or term is available.
Manufacturer and/or stock photographs may be used and may not be representative of the particular unit being viewed. Where an image has a stock image indicator, please confirm specific unit details with your dealer representative.


