Used 2018 KZ Sportsman 241RLLE Travel Trailer
KZ Sportsmen LE 241RLLE travel trailer highlights:
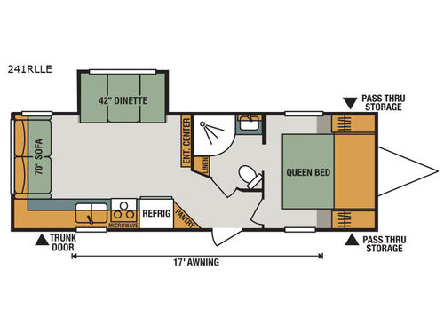
- Double Entry Bath
- Trunk Door
- Sofa
- Booth Dinette
Trying to decide which RV you will choose next? Just imagine you and your family of five camping in this Sportsmen LE 241RLLE travel trailer. The double entry bath allows you quick access at night from the front bedroom, and access from the hallway for your overnight guests. The 70" sofa can be used as a seating area during the day as well as a sleeping space for two at night. The 42" booth dinette can be used in the same way but comfortably sleep one. Store all of your camping or hiking gear either in the trunk door or pass through storage.
In any KZ Sportsmen LE travel trailer you will find tremendous value in overall quality, and innovative features. A few of these features are seamless countertops, an optional 10 cu. ft. stainless steel refrigerator, cavernous under-bed storage with gas struts for an effortless, easy-lift access, and a multi-media stereo with DVD, Bluetooth, and NFC wireless connectivity. Each unit features Armstrong tough guard linoleum which is backed by a 3-year cold crack warranty. They are constructed with a K-Z exclusive tough shield .030 exterior metal, a one piece seamless roof with SuperFlex roofing material, 3/8" fully walk on roof decking, and a diamond plate rock guard. The key-alike system offers not only the convenience of one lock for all applications, but security as well, which prevents other campers with standard industry keys from opening your storage compartments or entry doors!
Absolutely amazing and so kind! We have a hybrid travel trailer and we were getting tossed around traveling from the Denver area to Miles City Mt. During the trip we had a mishap with an hidden and illplaced clearance bar that resulted in roof damage and antenna damage. We called them from Douglas, Wy to see if they could at least install an anti-sway system. They were ready for us the minute we pulled - Lindsay
You Save: $169
Sale Price: $14,981
Stock# 90757C
Interior Color: Y
| Sleeps | 5 |
| Slides | 1 |
| Length | 28 ft 11 in |
| Ext Width | 8 ft |
| Ext Height | 10 ft 6 in |
| Int Height | 6 ft 6 in |
| Interior Color | Y |
| Hitch Weight | 620 lbs |
| GVWR | 7000 lbs |
| Dry Weight | 5230 lbs |
| Cargo Capacity | 1770 lbs |
| Fresh Water Capacity | 38 gals |
| Grey Water Capacity | 32 gals |
| Black Water Capacity | 32 gals |
| Tire Size | 14" |
| Furnace BTU | 25000 btu |
| Available Beds | Queen |
| Refrigerator Type | Double Door |
| Refrigerator Size | 6.3 cu ft |
| Cooktop Burners | 3 |
| Number of Awnings | 1 |
| Axle Weight | 4610 lbs |
| LP Tank Capacity | 20 |
| Water Heater Capacity | 6 gal |
| Water Heater Type | Gas/Electric DSI |
| AC BTU | 13500 btu |
| Awning Info | 17' Power w/ LED Lights |
| Axle Count | 2 |
| Number of LP Tanks | 2 |
| Shower Type | Radius |
| Electrical Service | 30 amp |
| VIN | 4EZTU2424J5127412 |
Loading
www.usedrvsforsale.com is not responsible for any misprints, typos, or errors found in our website pages. Any price listed excludes sales tax, registration tags, and delivery fees. Manufacturer-provided pictures, specifications and features may be used as needed. Inventory shown may be only a partial listing of the entire inventory. Please contact us at 321-888-7777 for availability as our inventory changes rapidly. All calculated payments are an estimate only and do not constitute a commitment that financing or a specific interest rate or term is available.
Manufacturer and/or stock photographs may be used and may not be representative of the particular unit being viewed. Where an image has a stock image indicator, please confirm specific unit details with your dealer representative.


